|
1 背景
进入2016年,环保政策进一步趋严,天然气成本下降,“煤改气”建站企业免费提供设备等多重因素助力燃煤锅炉改天然气(简称“煤改气”)继续阔步前行。在国家整体“压煤上气”的能源政策指导下,“煤改气”成为大势所趋。
2 引言
在“煤改气”的大环境下,工厂用气一般有三个来源,一种使用管道天然气,另一种采用压缩天然气(CNG),第三种使用液化天然气(LNG)。管道天然气因为敷设投资大,采用特许经营权的模式,前期管道及企业使用开口费较高,使用成本较高;CNG调压站压力较高,多级减压,安全性差,成本略低;LNG气源成本低,LNG气站压力较低,安全性及经济性最强。
液化天然气(LNG)主要成分为甲烷,属于一种清洁,高效的能源,它既可作为城市气源,又可用作公交和重型卡车的车用燃料,与汽柴油相比,具有抗爆性好,燃烧完全,排气污染少,发动机寿命长等优点。同时,LNG在使用过程中比较安全。LNG的燃点比汽油高,气化后的密度比空气轻,所以稍有泄漏立即飞散,不易引起自然爆炸。相比气态天然气,LNG其体积约为同量气态天然气体积的1/625,由此LNG具有储存效率高,占地少,便于进行经济可靠运输的特点。今年来,LNG的生产和贸易日趋活跃,LNG正在成为世界油气工业新的热点。
3 LNG气化站和瓶组站工艺简介
工艺流程简述:
 
LNG由槽车运至气化站,利用LNG卸车增压器使槽车内压力增高,将槽车内LNG送至LNG低温储罐内储存。当从LNG储罐外排时,先通过储罐的白增压系统,使储罐压力升高,然后打开储罐液相出口阀,通过压力差将储罐内的LNG送至气化器后,经调压、计量、加臭等工序送入工厂用气点或市政燃气管网。当室外环境温度较低,空温式气化器出口的天然气温度低于5℃时,需在空温式气化器出口串联水浴式加热器,对气化后的天然气进行加热。详见下图:
3.1.1.卸车增压系统流程
利用卸车增压系统,把槽车内的LNG液体通过卸车增压器,汽化后的气体进入储罐顶部,升高LNG运液车的压力,加快卸车的速度。
3.1.2.储罐自增压系统流程
利用储罐增压系统,当储罐压力过高或过低时,都能够通过储罐增压器,使储罐保持在正常工作压力的范围内。
3.1.3.主汽化及BOG汽化流程
储罐内的LNG从储罐底部出口进入主汽化器中(其中主汽化器选用两台,更换使用),通过主汽化器的吸热翅片与外界环境发生热交换,使通过汽化器的出口介质吸热变成NG,同时,储罐顶部的BOG进入BOG汽化器,使BOG也得到充分加热和汽化。
3.1.4.安全放散流程
在系统中阀门之间均按装安全阀,以及手动放散阀,放散出的EAG气体通过EAG加热器及阻火器达到安全放散的功能。
4 小型LNG气化站和瓶组站建站实例
4.1某单位10吨燃煤锅炉改造升级燃气锅炉技术参数
① 额定出力10t/h
② 额定工作压力:1.25Mpa
③ 给水温度 :105℃
④ 设计效率:≥90%
⑤ 使用燃料:燃煤
⑥ 燃料消耗量:5t标准煤/吨蒸汽
⑦ 燃烧方式:室燃
⑧ 电能消耗(风系统):96.4Kw
4.2 每天的总供气量为18000NM3/d NG,根据用户用气量和现场场地实际情况,设备选项配置如下:

供气站总投资约180万元,建成通气后日毛利约6000元,2年内可收回投资成本。
注:投资不含土建,公用工程,设计费,安装报检费等。
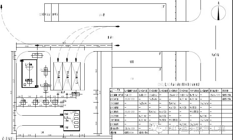
4.3 LNG气化站总平面布置示意图

5 LNG气化站标准规范和政策的支持
5.1 GB50028-2006《城镇燃气设计规范》已远远滞后于行业的发展,希望国家主管部门能够与时俱进,在保障安全的前提下,尽早,更加科学,经济地修订版本相应的标准规范。
5.2 建站手续审批方面,期待政府相关职能部门在LNG气化站手续审批和验收方面更加简化快捷。
6 结束语
LNG气化站和瓶组站,工艺流程简单,相对油品,LPG,CNG生产运营上更具安全性。在当前“煤改气”背景条件下,LNG气化站因其可靠的资源保障,合理的工程投资及销售价格,灵活的建站模式,可作为管道汽的一种互补方式,是值得大力推广的。
来源:上海正迈自动化科技有限公司摘自天然气咨询。
|